Magazzino in affitto

Stra, Piazza G. Marconi
€ 2.200 / mese
11 locali 11 locali
1100 Mq 1100 Mq
2 bagni 2 bagni

Magazzino in affitto

Stra, Piazza G. Marconi

Descrizione annuncio

PARTICOLARITA’ E DESCRIZIONE

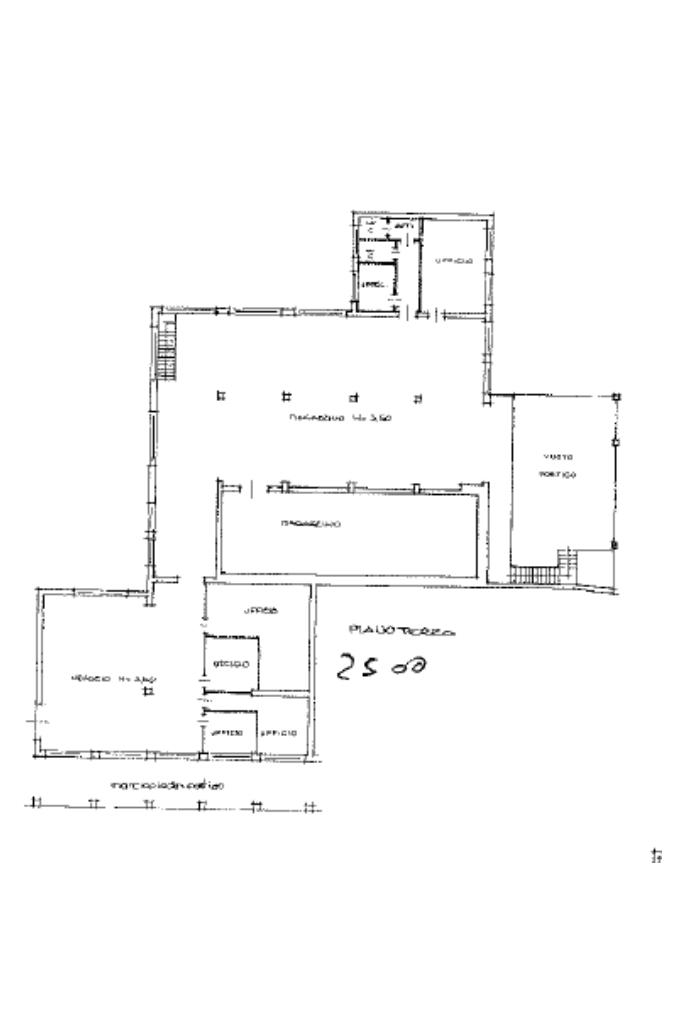
Proponiamo in locazione magazzino ubicato a Stra (VE), più precisamente in Piazza Marconi. È un fabbricato composto da magazzini e negozi dislocati su più livelli.

CARATTERISTICHE PRINCIPALI:

Altezza 3m circa ;1100 mq totali;Dotato di bagno e antibagno;Parcheggio esterno ad uso esclusivo;Ingresso carraio;Possibili quattro uffici;Magazzino nel retro;Magazzino nel piano interrato.

UBICAZIONE E CONTESTO

È ubicato in una posizione strategica, in quanto dista 6 km da Dolo, 14 km da Padova, 16 km da Mirano, 30 km da Mestre e 36 km da Venezia.

Mostra tutto

Nelle vicinanze

Trasporto pubblico Trasporto pubblico
Stra Centro
Stra Centro
270 m
Stra Capolinea (via Fossolovara)
Stra Capolinea (via Fossolovara)
350 m
Ricariche auto elettriche Ricariche auto elettriche
Piazza Guglielmo Marconi
2,5 Km
Scuole Scuole
Scuole
320 m
Scuola Secondaria di I° grado "Alcide De Gasperi"
2,4 Km
Scuola Elementare Statale "Guglielmo Marconi"
2,4 Km
Ex Scuola Elementare "Leonardo da Vinci"
2,4 Km
Farmacia Farmacia
Farmacia Villa Pisani
240 m
Farmacia
1,0 Km
Farmacia
2,1 Km
Farmacia Perin
2,4 Km
Supermercati Supermercati
Eurospar
2,2 Km
Interspar
2,3 Km
Prix
2,9 Km
Alì Tombelle
3,0 Km
Negozi Negozi
Panificio Cacco Silvio
2,1 Km
Market
2,2 Km
Spiga d'Oro
2,5 Km
Grano D'Oro di Favaro Carlo
2,8 Km
Bar Bar
Bar
2,1 Km
Bar Birillo
2,4 Km
Ristoranti Ristoranti
Pizzeria Ermes
920 m
Ristorante "Da Marziano"
990 m
La Casaccia da Bacco
1,2 Km
Dakota
1,5 Km
Ma e Ma
1,7 Km
Mostra tutto

Caratteristiche

Rif.:
61156156
Piano:
2 di 2 (Piano su più livelli)
Condizionamento:
Assente
Ascensore:
No
Riscaldamento:
Autonomo
Giardino:
Condominiale
Mostra tutto
Prezzo Prezzo
€ 2.200 / mese
Spese annue Spese annue
€ 0

Classe Energetica

Questo immobile è esente da classe energetica
Anno di costruzione:
1970
Riscaldamento:
Autonomo
Tipo impianto:
A radiatori
Tipo alimentazione:
Aria

Ti interessa visionare l'immobile?

Fissa un appuntamento  Fissa un appuntamento

Richiedi informazioni

Clicca su Leggi per aprire l'informativa
* Questi campi sono obbligatori
Affiliato
Tecnoimpresa Srl
Via Monte Verena, 7 30030 Pianiga (VE)

Il nostro staff


  • Luigi Dentino
    Collaboratore

  • Genny Mazzaro
    Coordinatrice

  • Pietro Santini
    Collaboratore

  • Alessandro Carraro
    Affiliato
Via Monte Verena, 7 30030 Pianiga (VE)
Zona: Pianiga - Mellaredo - Dolo - Fiesso - Camponogara - Mira - Mirano
Mostra su mappa
Orari: Da Lunedì al Venerdì 08:30-12:30 15:00-19:30 Sabato 09:00-13:00
Affiliato
Tecnoimpresa Srl
Via Monte Verena, 7 30030 Pianiga (VE)

2026 Tecnocasa Franchising S.p.A. - P. IVA 08365160152 - Via Monte Bianco 60/A 20089 Rozzano (MI). Ogni agenzia ha un proprio titolare ed è autonoma. Privacy policy | Policy utilizzo | Cookie policy