Capannone in affitto

Salzano, Via dell'Artigianato
€ 4.000 / mese
26 locali 26 locali
1500 Mq 1500 Mq
4 bagni 4 bagni

Capannone in affitto

Salzano, Via dell'Artigianato

Descrizione annuncio

Proponiamo in locazione capannone inserito in un contesto industriale a Salzano.

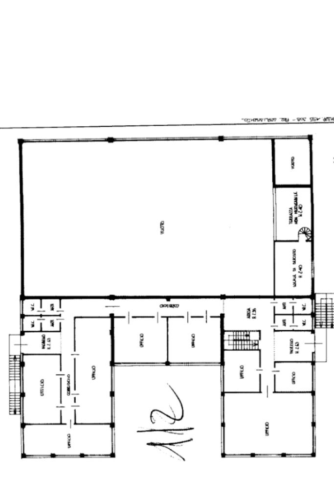
La soluzione si estende su una superficie complessiva di 1500mq, di cui 1000mq piano terra (zona produttiva) e 500mq al piano primo (zona uffici).

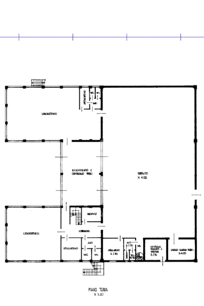
Piano Terra:

- 2 laboratori di metratura complessiva di 265mq;

- proprietà recintata;

- passo carrabile;

- servizi igienici con 2 spogliatoi;

-2 zone di carico e scarico merci 120mq;

- numerosi parcheggi esterni lungo la via all'interno della recinzione;

- capannone di 500 mq con soppalco.

Piano Primo:

500mq adibiti ad uso ufficio;Due servizi igienici per ciascuna ala;Due uscite indipendenti per reparto.

Salzano è un comune strategicamente posizionato nella Città Metropolitana di Venezia, facilmente raggiungibile sia con mezzi pubblici che privati. Situato a pochi chilometri dall'uscita autostradale di Martellago-Scorzè (A57), gode di un'ottima accessibilità per chi proviene da Padova, Treviso e Venezia. La zona industriale in cui si trova l'immobile è ben collegata alle principali arterie stradali del territorio, tra cui la SP38 e la SP39.

Salzano rappresenta un punto nevralgico per lo scambio commerciale tra le province limitrofe, rendendo questo capannone una soluzione ideale per attività produttive, logistiche o di stoccaggio.

Mostra tutto

Nelle vicinanze

Trasporto pubblico Trasporto pubblico
Salzano-Robegano
Salzano-Robegano
520 m
Trasporto pubblico
450 m
Robegano Puccini
Robegano Puccini
700 m
Scuole Scuole
Scuole
740 m
Scuola Elementare San Giovanni Bosco
1,6 Km
Istituto comprensivo Dante Alighieri
1,9 Km
Farmacia Farmacia
Farmacia
1,7 Km
Farmacia Comunale
2,0 Km
Ospedali Ospedali
Ospedali
1,9 Km
Supermercati Supermercati
Supermercati
1,5 Km
Coop
2,5 Km
Bar Bar
Bar
1,6 Km
Pasticceria Elisa
2,0 Km
Ristoranti Ristoranti
Gastronomia Antichi Sapori
830 m
Ristorante Pizzeria Al Pioppeto
920 m
Boraccia
1,2 Km
Pizzeria all'Albera
2,0 Km
Ai Laghetti
2,1 Km
Mostra tutto

Caratteristiche

Rif.:
61107819
Piano:
1 di 2 (Piano terra)
Posti auto:
20
Condizionamento:
Autonomo
Ascensore:
No
Riscaldamento:
Autonomo
Mostra tutto
Prezzo Prezzo
€ 4.000 / mese
Spese annue Spese annue
€ 0

Classe Energetica

E
E
E
E
E
E
E
E
E
EP globale non rinnovabile:
42.78 kW h/m² anno
EP globale rinnovabile:
42.78 kW h/m² anno
EP invernale del fabbricato:
EP estiva del fabbricato:
Anno di costruzione:
1990
Riscaldamento:
Autonomo
Tipo impianto:
A radiatori
Tipo alimentazione:
Metano

Ti interessa visionare l'immobile?

Fissa un appuntamento  Fissa un appuntamento

Richiedi informazioni

* Questi campi sono obbligatori
Affiliato
Tecnoimpresa Srl
Via Monte Verena, 7 30030 Pianiga (VE)

Il nostro staff


  • Luigi Dentino
    Collaboratore

  • Genny Mazzaro
    Coordinatrice

  • Alessandro Carraro
    Affiliato
Via Monte Verena, 7 30030 Pianiga (VE)
Zona: Pianiga - Mellaredo - Dolo - Fiesso - Camponogara - Mira - Mirano
Mostra su mappa
Orari: Da Lunedì al Venerdì 08:30-12:30 15:00-19:30 Sabato 09:00-13:00
Affiliato
Tecnoimpresa Srl
Via Monte Verena, 7 30030 Pianiga (VE)

2025 Tecnocasa Franchising S.p.A. - P. IVA 08365160152 - Via Monte Bianco 60/A 20089 Rozzano (MI). Ogni agenzia ha un proprio titolare ed è autonoma. Privacy policy | Policy utilizzo | Cookie policy