Complesso in vendita

Pianiga, Via Noalese Nord - Mellaredo
€ 209.000
6 locali 6 locali
220 Mq 220 Mq
2 bagni 2 bagni

Complesso in vendita

Pianiga, Via Noalese Nord - Mellaredo

Descrizione annuncio

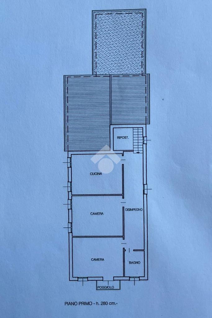
Proponiamo in vendita interessante immobile commerciale con appartamento annesso, ideale per chi desidera coniugare attività lavorativa e abitazione oppure per chi è alla ricerca di un’ottima opportunità di investimento,sito nel comune di Pianiga, più precisamente a Mellaredo, in via Noalese Nord.

L’immobile si estende su un lotto di 500 mq, di cui 130 mq di negozio e 90 mq d’appartamento.

Il negozio dotato di cucina e bancone bar, con spazi funzionali e ben distribuiti, perfetti per attività di ristorazione, bar o altre soluzioni commerciali.

L’appartamento, con ingresso separato, offre due camere da letto, una cucina abitabile e un bagno, garantendo comfort e praticità.

I due ambienti dispongono di ingressi indipendenti con possibilità di divisione completa, permettendo così di mantenere le due unità distinte e autonome.

Completa la proprietà un comodo parcheggio privato, elemento di grande valore sia per l’attività commerciale sia per l’abitazione. Soluzione versatile, adatta a diverse esigenze, in grado di offrire funzionalità, indipendenza e ottime potenzialità.

Mostra tutto

Nelle vicinanze

Trasporto pubblico Trasporto pubblico
Vigonza-Pianiga
Vigonza-Pianiga
2,9 Km
Ricariche auto elettriche Ricariche auto elettriche
VIGONZA Costituzione | BECHARGE
2,1 Km
Scuole Scuole
Scuole
1,8 Km
Scuola Media Don Milani
1,9 Km
Scuola Primaria "Ruzante"
2,2 Km
Scuola Primaria “Bonaventura da Peraga”
2,6 Km
Scuola Primaria "Guglielmo Marconi"
2,6 Km
Ospedali Ospedali
Ospedali
2,6 Km
Supermercati Supermercati
Ali
1,8 Km
Centro Commerciale
2,6 Km
Negozi Negozi
Panificio Pasticceria San Martino
2,9 Km
Bar Bar
Bar Centrale
170 m
Caffè Degli Artisti
2,2 Km
Movembik
2,2 Km
Ristoranti Ristoranti
Ostaria da Ciccio
1,3 Km
Marchioro
1,9 Km
Antichi Sapori
2,8 Km
Trattoria Piccolo Giorgio
2,8 Km
Pizzeria Gelateria Tre Stelle
2,9 Km
Mostra tutto

Caratteristiche

Rif.:
61173102
Piano:
Basso
Posti auto:
4
Condizionamento:
Autonomo
Ascensore:
No
Riscaldamento:
Autonomo
Mostra tutto
Prezzo Prezzo
€ 209.000
Rata mutuo Rata mutuo
€ 976 / mese
Spese annue Spese annue
€ 0
Proponi il tuo prezzoProponi il tuo prezzo

Classe Energetica

G
G
G
G
G
G
G
G
G
Anno di costruzione:
1990
Riscaldamento:
Autonomo
Tipo impianto:
A radiatori
Tipo alimentazione:
Aria

Ti interessa visionare l'immobile?

Fissa un appuntamento  Fissa un appuntamento

Richiedi informazioni

Clicca su Leggi per aprire l'informativa
* Questi campi sono obbligatori

Calcola il tuo mutuo

Semplice e senza impegno
Anticipo

( % )
Mutuo

( % )

pochi semplici passi

inserisci i tuoi dati
Questionario completato
Grazie per aver richiesto un appuntamento senza impegno con un nostro Consulente del Credito e Assicurativo.

Hai inserito correttamente tutti i dati necessari e a breve riceverai una e-mail con un link da convalidare per inviare i tuoi dati.
Affiliato
Tecnoimpresa Srl
Via Monte Verena, 7 30030 Pianiga (VE)

Il nostro staff


  • Luigi Dentino
    Collaboratore

  • Genny Mazzaro
    Coordinatrice

  • Pietro Santini
    Collaboratore

  • Alessandro Carraro
    Affiliato
Via Monte Verena, 7 30030 Pianiga (VE)
Zona: Pianiga - Mellaredo - Dolo - Fiesso - Camponogara - Mira - Mirano
Mostra su mappa
Orari: Da Lunedì al Venerdì 08:30-12:30 15:00-19:30 Sabato 09:00-13:00
Affiliato
Tecnoimpresa Srl
Via Monte Verena, 7 30030 Pianiga (VE)

2026 Tecnocasa Franchising S.p.A. - P. IVA 08365160152 - Via Monte Bianco 60/A 20089 Rozzano (MI). Ogni agenzia ha un proprio titolare ed è autonoma. Privacy policy | Policy utilizzo | Cookie policy