Capannone in affitto

Pianiga, Via Tagliamento - Mellaredo
€ 1.600 / mese
8 locali 8 locali
400 Mq 400 Mq
2 bagni 2 bagni

Capannone in affitto

Pianiga, Via Tagliamento - Mellaredo

Descrizione annuncio

DESCRIZIONI IMMOBILI

PARTICOLARITA’ E DESCRIZIONE

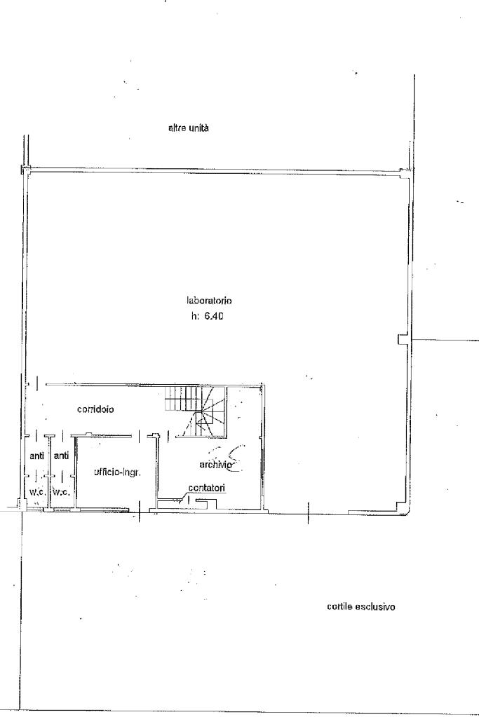
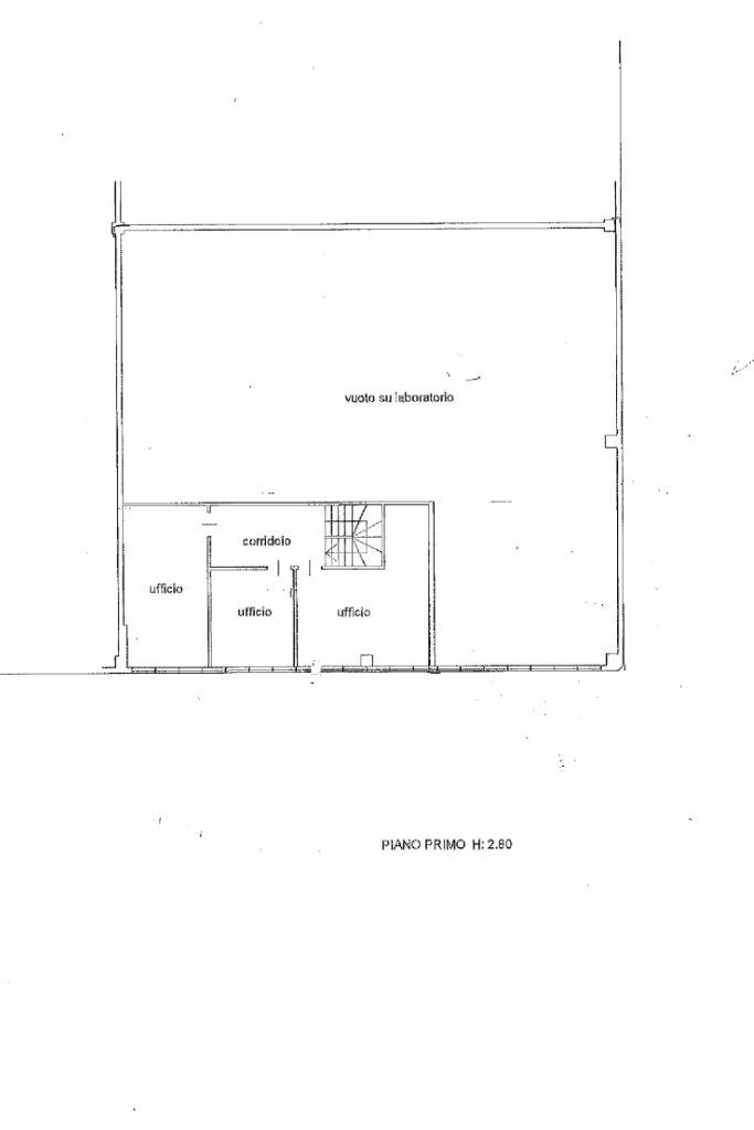
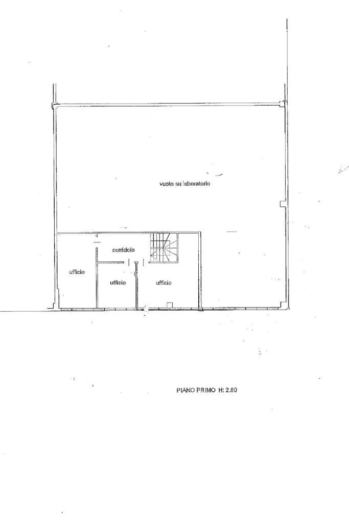
Proponiamo in locazione capannone con uffici ubicato a Mellaredo di Pianiga (VE), più precisamente in Via Tagliamento.

CARATTERISTICHE PRINCIPALI:

Altezza 6,4h ;400 mq totali;Datato di 2 bagni e antibagno;Parcheggi esterni ad uso esclusivo;ingresso carraio;Dispone di impianto elettrico ed illuminazione.ingresso e archivio al piano terratre uffici al piano primo dotati di impianto d'aria condizionata
Mostra tutto

Nelle vicinanze

Ricariche auto elettriche Ricariche auto elettriche
VIGONZA Costituzione | BECHARGE
930 m
Scuole Scuole
Scuole
820 m
Scuola Media Don Milani
850 m
Scuola Primaria "Ruzante"
1,2 Km
Scuola Primaria “Bonaventura da Peraga”
1,3 Km
Scuola Materna
1,4 Km
Farmacia Farmacia
Farmacia Balbinot Dott.Ssa Gloria
2,5 Km
Ospedali Ospedali
Ospedali
2,2 Km
Supermercati Supermercati
Ali
630 m
Alì-Aliper
2,7 Km
Negozi Negozi
Grano D'Oro di Favaro Carlo
2,9 Km
Bar Bar
Caffè Degli Artisti
860 m
Movembik
880 m
Bar Centrale
1,3 Km
Ristoranti Ristoranti
Marchioro
820 m
Ostaria da Ciccio
1,4 Km
Trattoria Piccolo Giorgio
2,1 Km
Tratoria ai Siegoi
2,1 Km
Mai Sazio
2,5 Km
Mostra tutto

Caratteristiche

Rif.:
61120289
Piano:
Terra
Posti auto:
5
Condizionamento:
Autonomo
Ascensore:
No
Riscaldamento:
Autonomo
Mostra tutto
Prezzo Prezzo
€ 1.600 / mese

Classe Energetica

G
G
G
G
G
G
G
G
G
EP globale non rinnovabile:
33.67 kW h/m² anno
EP globale rinnovabile:
33.67 kW h/m² anno
EP invernale del fabbricato:
EP estiva del fabbricato:
Riscaldamento:
Autonomo
Tipo impianto:
Ad aria
Tipo alimentazione:
Aria

Ti interessa visionare l'immobile?

Fissa un appuntamento  Fissa un appuntamento

Richiedi informazioni

* Questi campi sono obbligatori
Affiliato
Tecnoimpresa Srl
Via Monte Verena, 7 30030 Pianiga (VE)

Il nostro staff


  • Luigi Dentino
    Collaboratore

  • Genny Mazzaro
    Coordinatrice

  • Alessandro Carraro
    Affiliato
Via Monte Verena, 7 30030 Pianiga (VE)
Zona: Pianiga - Mellaredo - Dolo - Fiesso - Camponogara - Mira - Mirano
Mostra su mappa
Orari: Da Lunedì al Venerdì 08:30-12:30 15:00-19:30 Sabato 09:00-13:00
Affiliato
Tecnoimpresa Srl
Via Monte Verena, 7 30030 Pianiga (VE)

2025 Tecnocasa Franchising S.p.A. - P. IVA 08365160152 - Via Monte Bianco 60/A 20089 Rozzano (MI). Ogni agenzia ha un proprio titolare ed è autonoma. Privacy policy | Policy utilizzo | Cookie policy